-木造住宅パーフェクト詳細図集
著者 :丸山 弾 Author:Dan Maruyama
デザイン:山口信博 + 吉田結 Design :Nobuhiro Yamaguchi & Yui Yoshida
発行所 :株式会社 オーム社 Issuer:Ohmsha
那須の家から町田の家まで、6軒の家の写真と図面をまとめた本です。
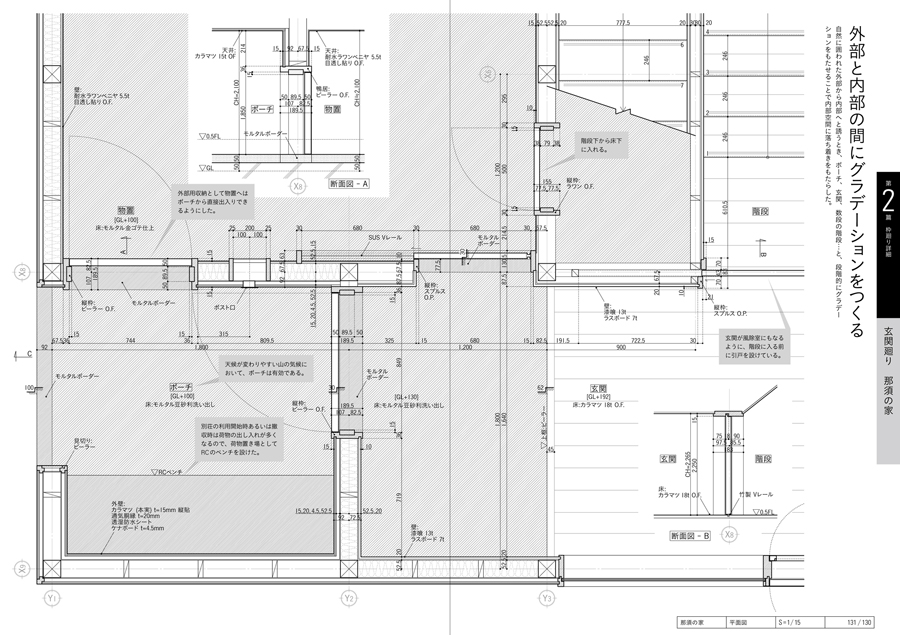
6軒の家のすべての平面図と矩計図を掲載するとともに
各家の主な詳細図を掲載して、ポイントを解説してあります。
住宅にご興味のある方、これから木造を勉強する方にお薦めの内容です。
- ARCHITECTURAL PRIDE 建築の本をつくる仕事



